当前位置: 首页 > 资讯 > 楼盘导购 > 太子湾独栋商业整售,中集大成艺术中心资料
太子湾独栋商业整售,中集大成艺术中心资料
来源: 作者:商置新房 2024-07-29 11:29:53 点击数:186
阅读声明:文章内关于户型面积的表述,除了特别标明为套内面积的内容外,所涉及户型面积均为建筑面积。
不可复制的区位优势深圳主流发展核心区域 山海蛇口 经济蛇口 人文蛇口
中集大成艺术中心整栋出售营销中心咨询电话:400-608-0035


蛇口 深圳改革开放源点 创新创意示范区
——世界湾区璀璨明珠, 国际海洋文化引领, 深圳文化创意集聚之处, 人文艺术韵味无可比拟之地
时代超核: 先后入驻企业包括苹果 、 IBM等世界500强企业, 联新 、 51VR等独角兽企业, 孩之宝 、 奥雅设计 、 高山水园林等行业龙头企业;
未来引擎: 蛇口扩容为前海蛇口自贸区, 南山 “ 三大示范工程 ”助力蛇口新规划, 打造 “ 蛇口国际海洋城 ”和 “ 国际化街区建设 ”双标杆;
文化聚落: 蛇口作为文化创新之都对外窗口, 汇聚五大人文场馆 、 三大文化策源地 、 两大国际展会, 历史文化建筑标杆, 吸引世界人才汇聚;
山海融城: 七大生态公园 、 三大城心青山 、 面朝深圳湾。

国家“海洋强国 ”战略 蛇口再先行
承接国家战略: 在国家 “ 海洋强国 ” 战略背景下, 2023年5月《深圳市海洋发展规 划 (2023-2035年) 》 出台, 是国内首个城市编制出台这一类型规划, 具有先行示 范意义;
世界领衔远景: 规划到2050年, 深圳海洋综合实力及全球影响力达到世界一流水准, 成为引领全球价值链 、 共塑海洋命运共同体的海洋城市发展典范;
南山全新格局: 南山 “ 一带三山四湾六区 ”, 包括赤湾海洋科技创新区 、 太子湾国 际海洋治理综合服务区 、 蛇口滨海人文休闲区 、 歌剧院国际艺术文化区 、 国际一流 枢纽港区和布局海上运动区 、 游艇自由行服务区 、 离岸经济功能浮岛等近海海域创 新利用试验区;
未来产业布局: “ 3+4+X ”现代海洋产业体系, 即提升发展海洋交通运输 、 邮轮经 济 、 海洋油气开发三大优势产业, 重点培育和发展海洋高端装备 、 海洋电子信息 、 海洋高端服务 、 海洋文化旅游四大核心产业; 创新布局海洋新能源 、 海洋新材料 、 极地开发等海洋潜力产业。
不可复制的地段优势
国际太子湾 商务太子湾 奢居太子湾 世界缤纷商业太子湾 超级高端配套太子湾
蛇口2.0太子湾 世界级滨海大都会
蛇口国际海洋新城战略, 太子湾片区为主要承载区, 对标美国哈德逊城市 广场, 汇集山 、 海 、 城三大元素, 约170万㎡的世界级海都会区大器已成。
建面约61万㎡商务集群
建面约46万㎡滨海商业街区 建面约39万㎡国际滨海社区 约22万吨级邮轮母港
建面约8万㎡五星级酒店 建面约6万㎡文化艺术
建面约4 . 5万㎡国际医院、 学校
国际艺术商业中心
约 4 6 万 ㎡ 太 子 湾 商 业, 打 造 中 国 首 个 一 线 临 海 K 11 E COAST 购 物 艺 术 中 心 亚 洲 旗 舰 店, 涵 盖 K 11 购 物 艺 术 中 心 、 K 11 HACC多用途艺术展览空间 、 D-Park等商业, 升级深圳商业的艺术品位与国际想象。

中集大成艺术中心整栋出售营销中心咨询电话:400-608-0035
世界级文化艺术殿堂
蛇口的深圳歌剧院, 比肩悉尼歌剧院, 将成为世界级TOP艺术殿堂; 深圳改革开放 博物馆 、 时间广场 、 海上世界文化艺术中心等, 将联袂展现深圳国际化文化的蓬勃 气息, 共同成就 “ 艺术蛇口 ”新名片。
全球优质教育医疗
这里是深圳的 “ 国际化教育社区 ”, 集中了全市约80%的国际教育资源 。 蛇口国际学校 、 科爱赛国际学校 、 深圳韩国国际学校、 深美国际学校 、 贝赛思国际学校 、 太子湾国际学校等多所国际学校星罗棋布; 即将开业的太子湾招商力宝国际医院, 以人类前 沿医疗技术为片区居民健康护航。

滨海之上顶级会客厅
希尔顿酒店、丽思·卡尔顿酒店两大国际超五星级酒店落子太子湾海岸线 深圳湾游艇会, 约15万㎡高端圈层海域, 款待世界友人的会客厅
湾区枢纽 南中国海上门户
海陆空轨多重交通汇聚, 蛇口邮轮母港通达全球, 构建粤港澳大湾区一小时商务生活圈。
海蛇口邮轮中心, 约30-90分钟内直达珠港澳
海
经南海大道 、 望海路等可速达全城, 约10分钟直达沿
路
江高速, 1小时湾区生活圈
驾车约20分钟达深圳机场, 乘船约35分钟达香港机场,
空
100余条国际航线环球
近享2号线蛇口港站 、 12号线太子湾站
轨
深圳湾口岸, 国内唯一的一地两检口岸, 24小时通关
口岸
太子湾大成广场项目本体概况
山海商务藏馆
滨海艺术公馆
文化艺术总部
稀缺滨海 独栋商业
艺术中心 (大成面粉厂)
全域唯一自带高端文化艺 术基因综合物业
重金打造艺术馆、博物馆、 高端公寓
• 办公 约8000㎡
• 公寓 约9900㎡
• 商业 约6000㎡
• 文化艺术 约13000㎡
• 民间博物馆 约2000㎡
• 物业服务用房 约100㎡
举步双地铁口站, 高效率 通勤
距离12号线太子湾地铁站约 150米
2号线蛇口港地铁站400米
全域唯一一线海景+独栋 冠名+独立单体
寸土寸金, 低密独栋冠名 , 商办、文化楼、商墅独栋单
尊重城市人文, 活化历史记忆, 再造文化地标
为留驻蛇口工业时代的历史风貌, 珍视并保留岁月痕迹, 改造后的大成艺术中心, 以保为主, 改为辅, 将历史建筑筒仓与磨机
楼活化新生, 把过去的丰硕粮仓, 变成未来的艺术家园, 以片区独特的存在, 赓续深圳的故事。
项目保留的历史建筑原为蛇口大成面粉厂, 是深圳第一批引入的外资企业。2015年为深港城市\建筑双城双年展深圳主展场, 2020年列入深圳市历史建筑保护名录。现正式将保护建筑活化修复, 并 做为大成艺术馆使用。项目设计整体设计以延续蛇口工业记忆, 成就城市新旧融合典范为目标, 充分利用历史建筑的独特性, 融儒释道为一体, 集元宇宙与传统展陈而呈多元, 用过去诠释当下与未
来, 打造深圳文化新高度, 引领大湾区文化创新新思潮。建筑方案由凯达环球主创, 南侧商业界面裙房采用厚重石材搭配通透的玻璃幕墙, 在延续场地原有历史风貌特质的同时, 注入现代活力, 实
现新旧建筑的对话。塔楼采用框+幕墙元素, 在确保南向一线海景景观视线同时, 最大可能减少西晒对使用者的影响。
中集大成艺术中心整栋出售营销中心咨询电话:400-608-0035

山海商务藏馆
深圳唯一一线滨海 独立冠名 独栋总部资产 产品层高卓越 可办可商可居住的全功能高端配置企业总部物业
核心低密
首排海景
50年产权灵动资产
专属总裁电梯
全景无死角 观采光面
超级层高优势
全功能空间
50年产权年限
2.43容积率, 全深圳仅约5%物业可享 (深圳新增物业中2.5及以下容积率产 品仅占约5%左右供应量)
深圳核心区域核心地段 唯一一线滨海独栋可冠名商办物业
企业独享私有产业, 总计约8000㎡体量, 总价可控, 50年产权, 22户均有 独立产权证, 后期可灵活拆分租售, 企业投资自用首选;
3梯2户, 电梯可直达-1业主专属停车区或14、 15F顶复单位, 可通过后期电 梯设置配备总裁专梯且不影响其余单位使用;
单层360°环绕全景观采光面, 单户270°三面景观采光, 后期可通过空间调整 灵活配置打造室内核心景观使用区;
标准层4.5m层高, 顶复 (14、 15F) 局部双层挑高, 充分预留设计表达空间;
大平层公寓式设计, 每层配备有厨房通风、卫生间给排水、燃气等加装条件, 可商办, 可居住, 可会所接待等多种使用场景功能随心设计;
稀缺50年超长年限商办产权, 错过不再。
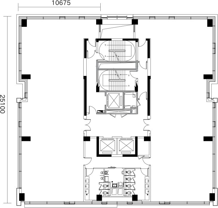
项目户型图

中集大成艺术中心整栋出售营销中心咨询电话:400-608-0035
上一篇: 华侨城瑞湾府(深圳)首页网站-楼盘详情
下一篇: (深圳)太子湾中集大成艺术中心楼盘详情
相关阅读
查看更多网友评论(文明上网,理性发言)
报名看房