当前位置: 首页 > 资讯 > 深圳湾1号写字楼租赁热线【招 商中心】深圳湾1号写字楼招租电话
深圳湾1号写字楼租赁热线【招 商中心】深圳湾1号写字楼招租电话
来源: 作者:商置新房 2024-04-30 16:30:27 点击数:152
阅读声明:文章内关于户型面积的表述,除了特别标明为套内面积的内容外,所涉及户型面积均为建筑面积。
深圳湾一号招租电话:400-608-0035写字楼物业招租招商_24小时电话!
深圳湾一号写字楼以其现代而典雅的建筑设计,彰显出商务办公的高端品质。高大的玻璃幕墙,让阳光洒满整个办公空间,营造出明亮而舒适的工作环境。走进大堂,你会被其宽敞明亮的空间所震撼,高档的装修材料、精致的装饰细节,都透露出这里的尊贵与不凡。

我们的办公场地面积段丰富,能够满足您公司的不同需求。欢迎您来电预约看房,我们将为您提供一对一的专属顾问带看服务。
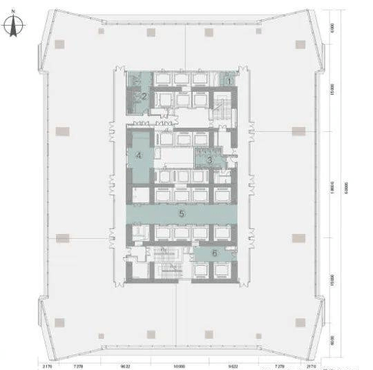
深圳湾1号位于后海中心区东滨路与科苑大道交汇处西北侧,紧邻深圳湾内湖的海景地块,也是从南侧深圳湾口岸所看到的个项目。是集办公、居住、酒店、商业于一体的城市综合体,将建成后海地区标志性建筑群,总建筑面积358000㎡,建筑高度70-338米。
【基础信息】
位置:南山后海总部基地
总高:72层,总高350米
标准层面积:2300-2600平米
层高4.5米,净高3.2米
8台瑞士进口电梯
出租楼层:4-30楼
物业管理费:38元/平米(含中央空调)
479个停车位。
交楼时间:现楼
天花:金属铝扣板天花+灯盘;
墙面:高级乳胶漆,双开玻璃门;
窗帘:可自动调节的电动智能窗帘;
地面:150毫米网络地板。
项目地址:南山区东滨路与与科苑南路交汇处
【深圳湾一号】写字楼T7栋 招商热线:4006080035
深圳湾一号写字楼招商电话4006080035
深圳湾一号写字楼以其优越的地理位置、卓越的办公环境、丰富的商业配套和专业的商务服务,成为了湾区商务的理想之地。它不仅为企业提供了一个高品质的办公场所,更是一个展示企业形象、拓展业务的绝佳平台。
在这里,你将与众多优秀企业并肩作战,共同书写商业传奇。深圳湾一号写字楼,期待你的加入,共同开创更加辉煌的未来!深圳湾一号写字楼招商电话4006080035

深圳湾1号中心
项目位于后海中心区东滨路与中心路交汇处东北角(深圳湾段),紧邻深圳湾内湖的海景地块,也是从南侧深圳湾
口岸所看到的个项目。是集办公、居住、酒店、商业于一体的城市综合体,将建成后海地区标志性建筑群,
总建筑面积358000㎡,建筑高度70--350米。
深圳湾1号中心拥有深圳高的直升机坪,提供私家商务飞行航线定制服务,拥有莱佛士奢级酒店,天际俱乐部;全球罕
周边配套


深圳湾一号写字楼招商电话4006080035
深圳湾一号招租电话:400-608-0035写字楼物业招租招商_24小时电话!
我们的办公场地面积段丰富,能够满足您公司的不同需求。欢迎您来电预约看房,我们将为您提供一对一的专属顾问带看服务。
免责声明:部分图片来源网络,如有侵权请联系后台,我们会第一时间删除。本文资料仅为要约邀请,部分图片为示意性图片,一切图文资料、规划设计仅供参考识别或分享交流之用,不构成合同内容,具体内容均以政府最终批准文件及双方签订的买卖合同为准。
相关阅读
查看更多网友评论(文明上网,理性发言)
报名看房