当前位置: 首页 > 资讯 > 岁宝壹品户型图(深圳福田)岁宝壹品价格-最新优惠折扣-学校
岁宝壹品户型图(深圳福田)岁宝壹品价格-最新优惠折扣-学校
来源: 作者:商置新房 2024-09-07 11:14:35 点击数:163
阅读声明:文章内关于户型面积的表述,除了特别标明为套内面积的内容外,所涉及户型面积均为建筑面积。
岁宝壹品预约看房送家电大礼包+物业费减免,预约电话:400-608-0035,项目超50万㎡ 云端都会垂直生活体,集居住、购物、休闲娱乐、办公等功能为一体,融合国际视野和前沿力量,打造湾区奢华之作,成就傲立城市天际的时代信念。齐聚世界巨匠,缔造典藏杰作,设计构想著作礼献深圳的时代作品,引入凯达环球Aedas、AECOM园林设计、香港郑中设计事务所、梁志天室内设计等享誉世界的全球大师团队。以“大鹏飞天山,遨游云海间”为立面设计意向,以此实践“扶摇直上九万里”的鲲鹏构想,致敬鹏城四十年的城市印记。
创造性地于150米高空,匠心设计了一处连接三栋塔楼,面积达6000㎡的云顶私人会客厅;匠心规划,接驳空中连廊,串联体育中心、笔架山公园和莲花山公园;配置约5万㎡购物中心,衔接地铁6号线、7号线八卦岭地铁站。岁宝物业倾情打造云系专属服务,秉承品味、奢华、尊贵的定位,以专属管家服务,为业主充盈人居礼序。

福田『岁宝壹品』售楼处
『开发商』咨询热线:400-608-0035(中介勿扰)
致电售楼处报名看房可另享团购99折优惠!
户型、价格、楼层、朝向
温馨提示:本楼盘暂不接受临时到访,看房需提前来电预约!
将为您安排楼盘专业销售1&1接待服务!让你买的放心!
荔园实验+荔园小学东校区
福田真公寓 积分入学 带精装修
通燃气 带阳台 不限购 不限贷
建面约45-220㎡1-3+1房
1
项目简介
01
项目基础信息
项目名称:岁宝壹品
位置:深圳市福田区八卦岭地铁站D出口
占地面积:2.09万㎡
总建筑面:50万㎡
开 发 商:深圳市晟润丰投资发展有限公司
地铁配套:6、7号线八卦岭站双地铁上盖,9、14号线环绕
商业配套:自带约5万㎡集中 Shopping Mall
项目体量:超56万㎡都市垂直生活体
产品面积:A栋:160-220㎡(专梯入户),B座:47-125㎡(3梯5户)
C栋:52-95㎡(3梯8户) ,217-519㎡(3梯3户)
价格:7-10万/㎡
层高:3-4.5米
教育学区:公寓产品可落户、积分上双荔园名校
土地年限:2016-2056年
物业管理:A栋11元/平,BC栋是9.9元/平
交楼时间:A,B栋2023年3月,C栋2023年12月,精装修交楼
物业公司:壹品物业 C座主力产品-80平灵动空间
02
项目地址
岁宝壹品位于深圳市福田区八卦岭上步路与泥岗路交汇处,由三座服务式公寓塔楼、一座250米高的办公塔楼、一座商业裙楼和一个可以连接各塔楼的天际花园组成,是集办公、商业、服务式公寓等多种业态于一体的门户工程,公寓塔楼位于北侧,尽享银湖山景;办公塔楼位于商业价值较高的南侧,形成商业门廊入口

03
项目平面图



C栋新品:
52-95㎡(3梯8户) ,217-519㎡(3梯3户)湾区臻藏资产
主力产品:约80㎡灵动四空间,4.5m层高

B座产品:47-85-92-115-125㎡ 1-3房云端美寓
建筑面积约115㎡2+1房2厅1厅

建筑面积约125㎡2房2厅2卫

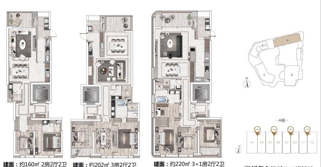
A栋产品:160-200-220㎡ 2-3+1房云端美寓
建筑面积约160㎡ 2房2厅2卫

建筑面积约202㎡3房2厅2卫

建筑面积约220㎡3+1房2厅2卫







价值一 区域价值
未来规划——超500万㎡金融科技总部基地规划 ,打造福田最宜居区域,深业+平安两大巨头统筹超500万㎡规划体量、福田优先重建区,3年成形5年成熟

以金融科技总部基地为规划,打造福田最宜居区域
八卦岭作为福田重点打造的“1+5”环中重要的一环,定位为“金融科技总部基地”,与香蜜湖的“国际金融总部基地”共同构建“一湖一岭”的福田双金融中心格局

价值二 交通价值
双地铁上盖 (6/7号线八卦岭站),四地铁环绕,“0”距离接驳全城邻近9号线(泥岗站)、7号跟14号线建设中(黄木岗站);同时配备顶级城市核心区域才会配建的空中连廊系统,串联周边生态及配套,使之成为业主的后花园、泛会所,用脚步丈量繁华

项目地块北侧便是泥岗东路,西接城市主干道北环大道。沿泥岗东路东行约1公里便是清平高速,可快速通达龙华

价值三 配套价值
500步直达41万㎡国际顶级体育中心
通过空中连廊系统,500步直达41万㎡的体育中心(升级改造中),改造后的体育中心将成为世界一流体育中心,未来十年WTA年终总决赛也将在此举行。

改造完成后的体育中心,将由体育馆、体育场、游泳跳水馆、网羽中心、体育运动长廊等配套全民健身公共设施、及相关配套空间组成。
其中新建的体育馆,是可同时容纳1.5万名观众的综合馆。而改建的体育场,将成为可同时容纳4.5万观众的专业足球场。
八卦岭片区内旧改体量高达约500-550万平,相当于两个华润城的体量。

项目所在片区方圆3公里范围内,就有深圳市第二人民医院、深圳市妇幼保健院、深圳市中医院和中山大学附属第八医院4家三甲医院。
方圆5公里范围内,除了上文提到改造中的市体育馆,还分布有深圳市当代艺术与城市规划馆、音乐厅、图书馆、关山月美术馆、会展中心等9个大型文体设施,文艺康体配套一应俱全。

而正在动工的岁宝壹品,未来将通过空中连廊与体育中心、笔架山公园等串联起来,数百米内可以直接步行到达,不仅近距离享有城市人文配套资源,同时也拥有难得的自然景观资源。
价值四 生态价值
处于两山六公园的环绕之中,在享受城市繁华之外,可以随时走入自然。攀登银湖山和笔架山两大山脉,赏玩笔架山公园、深圳中心公园等六大公园,蓊蔚洇润,尽扫胸中杂气。

岁宝还将建成云上连廊,届时既可联通深圳市体育中心,又可拥抱八卦岭、白沙岭、笔架山公园,可自由漫步于城市空间,实现车行和步行系统的和谐共生。

最重要的,是开发商于规划设计环节,不惜加大投入,强化项目本体与外界资源的无缝接驳,通过空中连廊系统,将体育中心、笔架山公园和莲花山公园等各项配套进行串联,步行10分钟可达体育中心,20分钟进入笔架山公园,为业主享受城市人文配套和绿地鲜氧资源提供便捷。

尽享自然景观与城市景观,北侧靠福田“大靠山”塘朗山山脉的银湖山,西侧靠近笔架山公园、深圳市体育中心以及南北贯穿福田的环中心公园,西南可以遥望繁华的福田中心区及平安大厦,东南遥望罗湖CBD,繁华尽收眼底,静享无尽闲暇 。

价值五 商业配套价值
自带深圳罕见的双地铁上盖以及片区唯一近5万㎡的集中式商业。同时通过项目负一层全新24小时通道,无缝连接6/7号线地铁站及八卦三路地下商业长廊,奢享一站式城市级购物体验。

10分钟可享受卓悦中心、深圳中心城、华强北九方购物中心、茂业天地、万象城、KKmall等商场购物、休闲、商务便利,及深圳市体育馆、深圳市当代艺术与城市规划馆、音乐厅、图书馆、关山月美术馆、会展中心、科学馆等文化艺术巅峰场馆的熏陶。
价值六 名校价值
深圳最强教育区,周边名校资源云集
一公里内坐拥双荔园名校配置(项目二期旁规划荔园实验学校、以及东南侧的荔园小学东校区),教育氛围浓厚;深中、荔园、实验、园岭等顶级名校汇聚,释放1.4万个陪读+改善的置业人群。



如今笔架山中学的建设,终于再次迎来标志性的进展!笔架山中学也就是荔园实验学校,这将是荔园教育集团的第一所九年一贯制学校。
至此,加上片区内的园岭实验小学、园岭外国语小学,以及在建中的荔园小学东校区,八卦岭将与百花、园岭片区,共同组成了深圳基础教育资源最丰富的黄金地带!

深圳中学泥岗校区位于岁宝壹品的北边,它是深圳中学的高中部,今年刚建成使用。

总建筑面积:17万平方米
投资额:13.7亿
班级:设75个班
学位:3750个
全寄宿制高中
新校区号称“深圳最美”的学校,下面我们欣赏一下

价值七 产品价值
标杆产品——片区首发,全球大师团队造超56万㎡都市垂直生活体
集合凯达环球、AECOM、CCD郑中设计、DIA丹健国际、梁志天、黄志达等国际顶级团队大师团队打造城市新地标
城市地标——大鹏飞天山,傲游云海间
由城市标杆缔造者,全球五大建筑事务所之一的凯达环球在深圳核心区域打造的首个标杆项目。以深圳别名鹏城为设计灵感、大鹏展翅的曲线造型打造成为一个独特且不能被复制、只属于深圳的精神文化地标

天工园林——约40000㎡独创五重立体园林
园林设计由全球最大的景观与规划设计公司AECOM设计,创新的引入了新加坡森林城市立体园林的概念,由下而上通过曲线的绿化、铺地、浅水等表达“山之叠嶂、绿之叠翠、水之叠灵、云之叠景”的意境。

云端会所——深圳首创约150米云端会所
约150米高空,打造了一处连接A、B、C三栋塔楼,面积约6000㎡带露台云端会所,涵盖无边际恒温泳池、宴会厅、天际健身房等休闲运动功能,使业主在家即可享受如五星级酒店会所般配置,方便、舒心

园林设计模拟梯田绿化退台设计,形成特色立面立体生态,层层叠嶂,最大化增加绿化空间,使其最终拥有垂直景观的5重天工园林,休闲绿化面积高达3.6万㎡。

其5重园林包括,下沉空间、首层景观(山之叠嶂)、二&三层景观(绿之叠翠)、四&五层景观(水之叠灵)与天际花园景观(云之叠景),身处园林内部,体验绿意,游、赏、玩,需费时1个小时,日常休闲不假外求。

项目的点睛之笔就是位于41层、150米高空的屋顶花园,是5重园林的最高组成,“鹏”图腾云端会客厅就位于此处。
云端会客厅设施包括天际会所由party house、室内恒温泳池、SPA馆、山景健身中心等。其中,party house涵盖有私人宴会厅、高端酒吧以及会议厅。

A栋:160-220㎡
B栋:45-92-115㎡
C栋:52-82-217-222-501-519㎡

福田『岁宝壹品』售楼处
岁宝壹品有多少栋,几梯几户,小区有多少户人家,容积率多少,总高有多少层,交楼时间,户型有那些,价格多少、有哪些折扣、离地铁近吗,哪个地铁口,是带什学位?售楼处电话,营销中心电话,售楼处在哪里?在哪个位置,营销中心在哪里?
请致电售楼处索取楼盘资料
岁宝壹品售楼处电话/咨询热线:400-608-0035(营销中心)
温馨提示:本楼盘暂不接受临时到访,看房需提前来电预约!
致电售楼处报名看房可另享团购99折优惠!
将为您安排楼盘专业销售一对一接待服务!让你买的放心!
免责声明:本资料中对项目周边环境、配套及交通等图文介绍仅供参考,不构成开发商的任何要约或承诺,最终以政府批准文件、项目实际周边情况为准。本项目的图文资料仅供参考、非要约,具体以交付时现状及买卖合同的约定为准。本公司保留修改宣传资料的权利,敬请留意项目最新资料,最终的解释权归本公司所有。
相关阅读
查看更多网友评论(文明上网,理性发言)
报名看房