当前位置: 首页 > 资讯 > 信利康智慧总部大厦全球招商,欢迎入驻
信利康智慧总部大厦全球招商,欢迎入驻
来源: 作者:商置新房 2025-03-18 12:01:17 点击数:134
阅读声明:文章内关于户型面积的表述,除了特别标明为套内面积的内容外,所涉及户型面积均为建筑面积。
【信利康智慧总部大厦】 招商中心预约热线:400-608-0035
线上预约看房享入驻租金优惠大礼包!
【信利康智慧总部大厦】甲级产研办公全球招商9X元/㎡/月起!
【项目基础信息】
总建面约2.82万m²,占地约3000m²,由产研办公及底商组成

楼层:5-11F(半层起租)、12-16F(整层起租)
面积: 584-596-1180㎡
使用率:61%(整层65%)
标准层层高/承重:4.5m,500kg/㎡
电梯:日立 3(1.35T客梯)+1(2T消防梯)/层
幕墙:全玻璃幕墙
配电:45KW/层(一层两户每户22.5KW)
交付标准:公区精装,户内毛坯
物业管理费:19元/㎡/月
交付时间:2025年4月1日
月租:9X元/㎡/月起

本体亮点
【高端形象彰显大企风范】
整个区域最具特色的大厦形象,横向线条与玻璃幕墙相结合,立面如流水蜿蜒流淌,整体形象动力十足,彰显企业高端大气形象;

【业主供应链龙头信利康集团迁入】信利康集团总部自用大厦,产核更稳固;
【自配三菱VRV中央空调】24小时冷暖自用,计电费,无加班费,高效节能;

【百变空间随心布局】
标准层一层2户,半层/整层起租,户型方正实用,全无内柱,满足企业舒适办公需求;
【信利康智慧总部大厦】 招商中心预约热线:400-608-0035
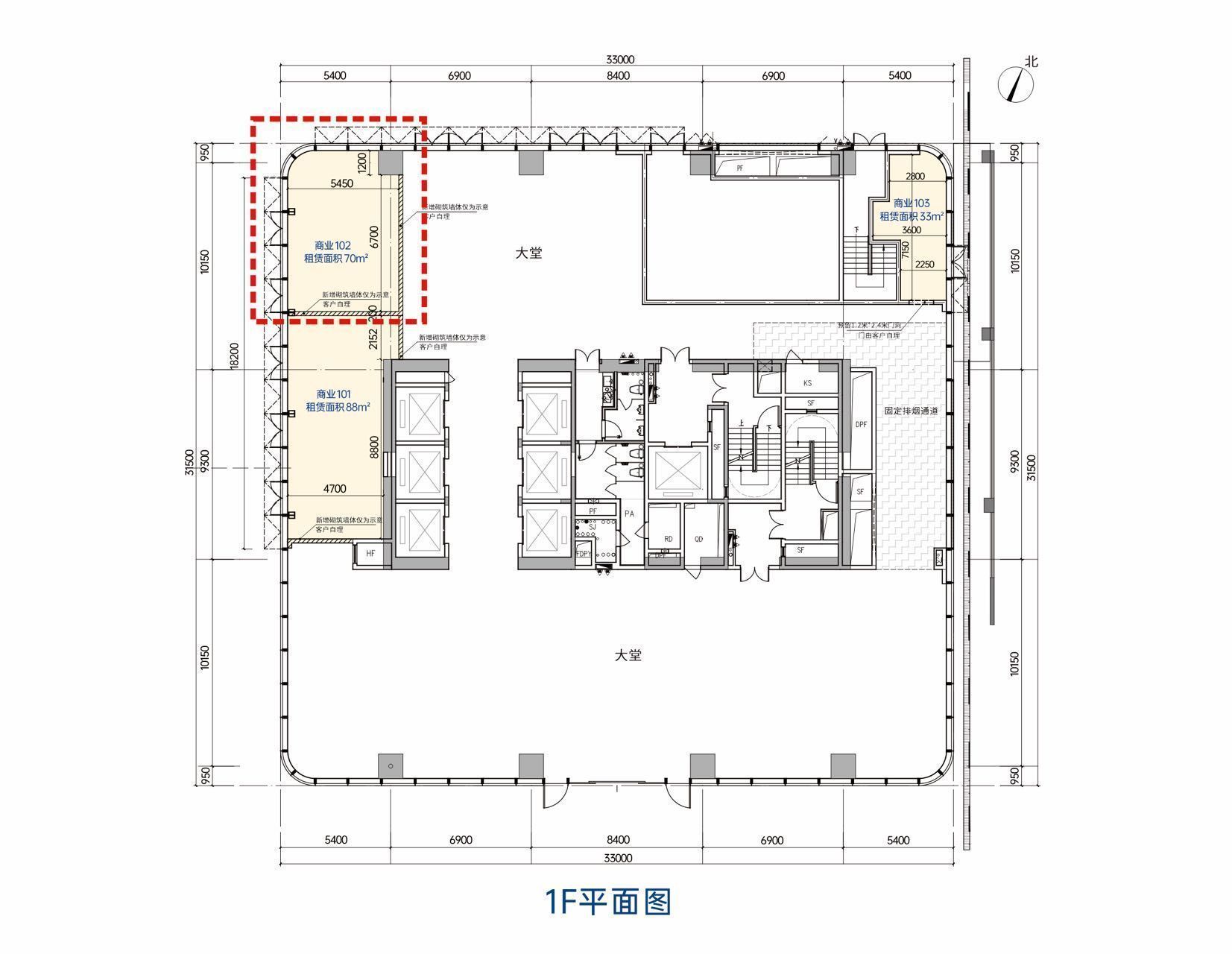
【黄金旺铺广纳人潮】稀缺首层底商仅余1间在租!临街铺位,昭示性强。拥享本栋及周边写字楼稳定客源。

区位交通
【深圳智谷】福田是深圳最核心最繁华的中心城区,以4%的面积承载了全市17%的GDP。根据福田区发改发布的《福田区现代产业体系中长期发展规划(2017-2023)》,福田将形成以“曼哈顿+硅谷”为对标,以“金融+科技+文化”为特色,以“CBD+高新区”为形态的经济体系。到2035年,福田将建成大变区现化产业引领区。
梅林片区作为福田十四五规划中产业蜕变的片区,以“深圳智谷.梅彩中轴智慧城”为总体目标,片区超500亿投入,打造近120万平方米产业空间,约148公顷城市更新红利,持续升级的“1+9+N”产业发展专项基金等营商环境优化政策,成为总部产业聚集的新高地。信利康智慧总部大厦正是座落在福田产业发展核心中轴梅林片区,坐享超中心城市更新红利,未来大有可期。

【项目交通】信利康智慧总部大厦座落于福田区梅林片区泰科路和梅华路交界处。项目交通十分便利。
快速路:北环大道与新洲干道交汇,快速通达全市。
2地铁:约900米可达9号线下梅林站;零距离22号线北环中学站(建设中,预计2028年通车);
城际轨道:地铁接驳享福田、皇岗双口岸,联动福田站、深圳北站双高铁,链接深港对话世界。

丰盛配套
繁盛中芯:华强广场乐淘里、卓越汇、佐邻虹湾、卓越中心、皇庭广场、领展中心城、购物公园;
学府智芯:梅林小学附属幼儿园、梅林小学、美莲小学、梅林中学、福田北环中学;
医疗中芯:北京大学深圳医院、广州中医药大学深圳医院、深圳市儿童医院;
行业龙头企业 自有物业公司
中国500强信利康集团实力加持,聚焦供应链服务22载,供应链行业龙头企业。信利康自2012年开始涉足产城开发,目前已在深莞惠布局九大智慧产业园,率先打造“供应链+智慧园”生态圈。
信利康集团自有物业公司,秉承信利康集团一贯的专业素养及细致入微的卓越品质,为客户提供个性、专业、贴心的全方位管家式业务服务。
【信利康智慧总部大厦】 招商中心预约热线:400-608-0035
线上预约看房享入驻租金优惠大礼包!
相关阅读
查看更多网友评论(文明上网,理性发言)
报名看房